アーバンビルのテナント ADAMAS

title2.png

ホーム.gifホーム.gif賃貸.gif賃貸.gifテナント.gifテナント.gifホール.gifホール.gifリース.gifリース.gif会社.gif会社.gif問合せ.gif問合せ.gif

IMG_2565.JPG

貸店舗・テナント

westend.jpgwestend.jpgurban.jpg

アーバンビル

四日市中心街にある、活気溢れる好立地が、あなたのビジネスをサポート!

B1Fから6Fまでの全館テナントの商業ビルになっております。


IMG_2565 2.jpg

アーバンビル  B1F
B1F.jpg
107.35 ㎡

アーバンビル  1F
1F.jpg
114.82 ㎡

アーバンビル  2F
2F.jpg
110.67 ㎡

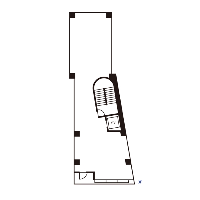
アーバンビル  3F
3F.jpg
93.42 ㎡

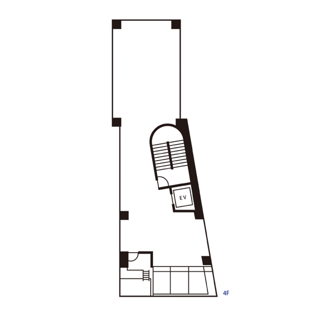
アーバンビル  4F
4F.jpg
121.47 ㎡

アーバンビル  5F
5F.jpg
111.37 ㎡

アーバンビル  6F
6F.jpg
------------- ㎡

shiryou.pngshiryou.png

blog_sbanner.pngblog_sbanner.png

info_banner.pnginfo_banner.png

adamas_2.jpg

jab.jpg
aeon.jpg
towa.jpg
artnature.jpg